株式会社丸喜住宅産業
ホーム
売買物件
賃貸物件
会社概要
お問い合わせ
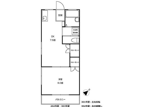
賃貸マンション 柏市豊四季
賃料
44,000円(共益費3,000円)
敷金
2ヶ月
礼金
-
交通
東武野田線豊四季駅徒歩3分
間取り
1DK
面積
29.05㎡(8.79坪)
構造
鉄骨造3階建 2階部分
契約期間
2年間
駐車場
空きなし
現況
空
入居
相談:2026年1月以降
設備
プロパン・公営水道・浄化槽・室内洗濯機置き場・ユニットバス(追い焚き機能付き)・ウォシュレット・テレビインターホン・セキュリティシステム・エアコン
築年
1972年
取引態様
代理
備考
女性限定